Cod. AP597 - BOSSI
Castelnuovo Berardenga
€295.000
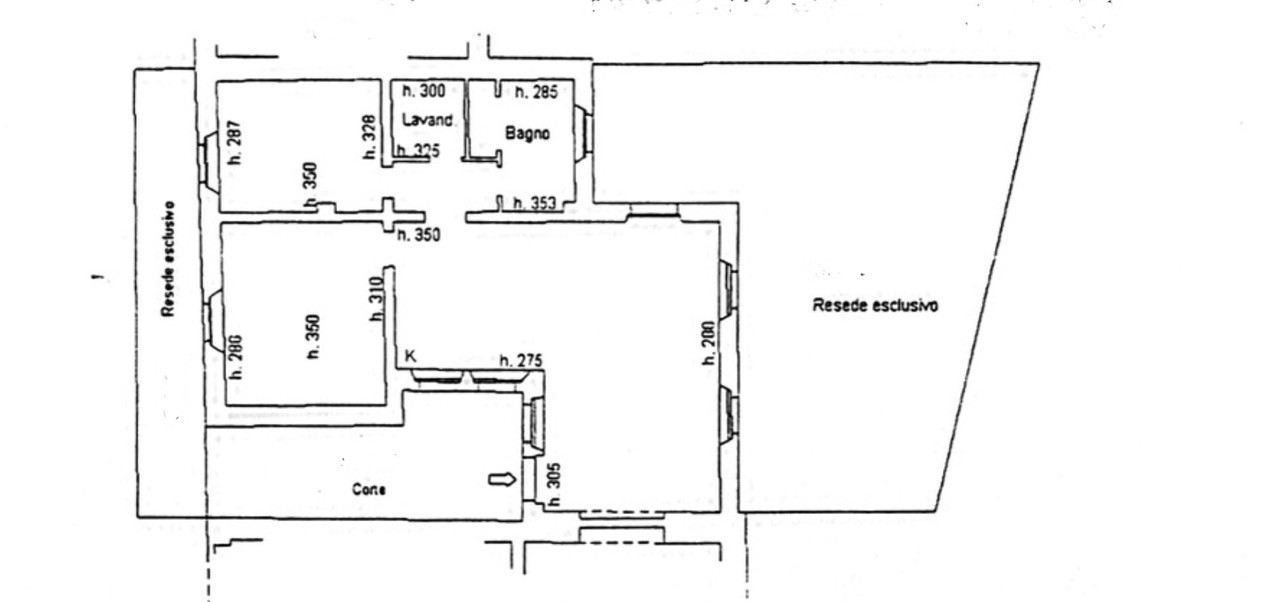
All’interno dell' antico borgo del Chianti Castello di Bossi proponiamo in vendita appartamento completamento e perfettamente ristrutturato di circa 105 mq. Ingresso indipendente al piano terreno da resede e corte esclusiva, con cucina pranzo aperta e soggiorno, giardino terrazza di circa 50 mq., due camere matrimoniale, bagno grande e altro bagno lavanderia
- Codice AP597
- Tipo di Annuncio Vendita
- Tipologia Appartamenti
- Provincia SIENA
- Comune Castelnuovo Berardenga
- Località BOSSI
- Numero Locali 4
- Classe Energetica G IPE/EPI: kWh/mqanno
- Piano T di
- Stato conservazione interni OTTIME
- Stato conservazione esterni ottime
- Posto auto condominiale SI






















