Cod. AP600 - Località Torre a Castello
Asciano
€83.000
Località Torre a Castello, Comune di Asciano, vendesi appartamento al piano primo, con sottostante garage e giardino/resede di 220 mq facente parte di una palazzina divisa in sole tre unità abitative.
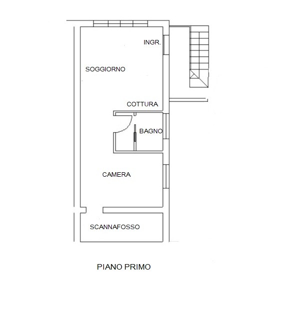
Se pur accatastato a monolocale è diviso nei suoi 40 mq tra soggiorno con angolo cottura con bella vetrata panoramica sulla valle sottostante, antibagno e bagno e camera matrimoniale e scannafosso utilizzato per cantina/ripostiglio.
Sotto l’appartamento, non collegato internamente, ampio garage di 30 mq con giardino esclusivo oltre a cantina/locale tecnico.
Costruzione del 1970, facciata e tetto in ottime condizioni, internamente ristrutturata nel 2003, impianti a norma e certificati.
Ingresso ed utenze autonome, riscaldamento a metano. In condominio solo lo spurgo delle fosse biologiche.
- Codice AP600
- Tipo di Annuncio Vendita
- Tipologia Appartamenti
- Provincia SIENA
- Comune Asciano
- Località Località Torre a Castello
- Numero Locali 3
- Classe Energetica F IPE/EPI: 167.65 kWh/mqanno
- Piano 1 di 2
- Spese condominiali 0 €/mese
- Anno costruzione 1970
- Anno ristrutturazione 2003
- Stato conservazione interni buone
- Stato conservazione esterni buone
- Posto auto privato SI
- Riscaldamento autonomo SI


















