Cod. ANX796 - Via Guido Rossa
Castelnuovo Berardenga
€165.000
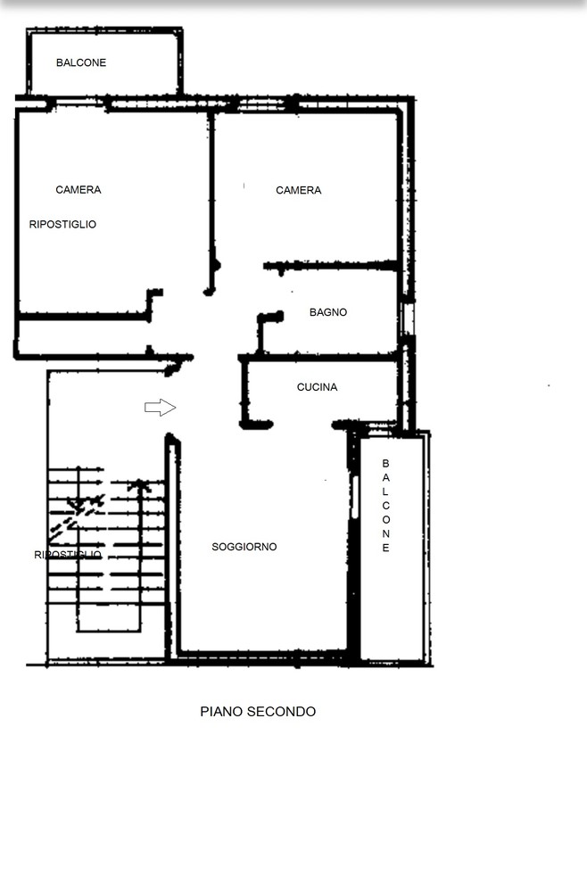
Vendesi a Quercegrossa, Via Guido Rossa, appartamento di 70 mq commerciali realizzato negli anni ’90 inserito al piano seondo in piccola palazzina a mattoncini con utenze autonome e spese condominiali irrisorie.
Si divide tra ampio soggiorno con angolo cottura a vista e spazioso balcone in cui è possibile cenare comodamente in tre persone,,zona notte con ampia camera matrimoniale con balcone, camera singola, bagno finestrato con box doccia e un comodo vano ripostiglio.
E' presente l'aria condizionata. Completa la proprietà un ampio garage.
Internamente necessita di ammodernamenti.
- Codice ANX796
- Tipo di Annuncio Vendita
- Tipologia Appartamenti
- Provincia SIENA
- Comune Castelnuovo Berardenga
- Località Via Guido Rossa
- Numero Locali 5
- Classe Energetica In fase di richiesta IPE/EPI: kWh/mqanno
- Piano 2 di
- Spese condominiali 15 €/mese
- Anno costruzione 1990
- Stato conservazione interni interni da rinnovare
- Stato conservazione esterni buone
- Balcone SI
- Riscaldamento autonomo SI
- Climatizzatore SI
















