Cod. AN803 - Scacciapensieri
Siena
€399.000
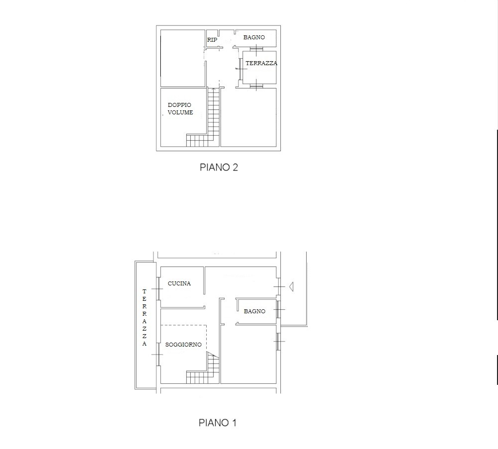
Via Orlandi, Scacciapensieri, all’interno di elegante complesso residenziale, vendesi appartamento su due livelli di complessivi 115 mq su due livelli oltre balcone e terrazza a tasca. Il piano primo si divide tra ingresso, soggiorno alto (doppio volume) con balcone, camera matrimoniale e bagno oltre alle scale di accesso al piano secondo che comprende altre due camere, il secondo bagno, un ripostiglio ed una terrazza a tasca.
Immobile completamente ristrutturato nel 2021 e pertanto in perfette condizioni con impianti a norma e certificati.
Utenze autonome, spese condominiali euro 100 al mese circa che comprendono tutte le voci classiche ed anche il consumo dell’acqua che è rilevato da sottocontatore.
Anche le parti condominiali sono in ottime condizioni con la facciata rifatta nel 2022 e nell’occasione revisionato il tetto.
- Codice AN803
- Tipo di Annuncio Vendita
- Tipologia Appartamenti
- Provincia SIENA
- Comune Siena
- Località Scacciapensieri
- Numero Locali 7
- Classe Energetica F IPE/EPI: 163,6 kWh/mqanno
- Piano 1 di 2
- Spese condominiali 100 €/mese
- Anno costruzione 1980
- Anno ristrutturazione 2021
- Stato conservazione interni ottime
- Stato conservazione esterni ottime
- Posto auto condominiale SI
- Balcone SI
- Riscaldamento autonomo SI






















