Cod. ANX807 - viale Cavour
Siena
€260.000
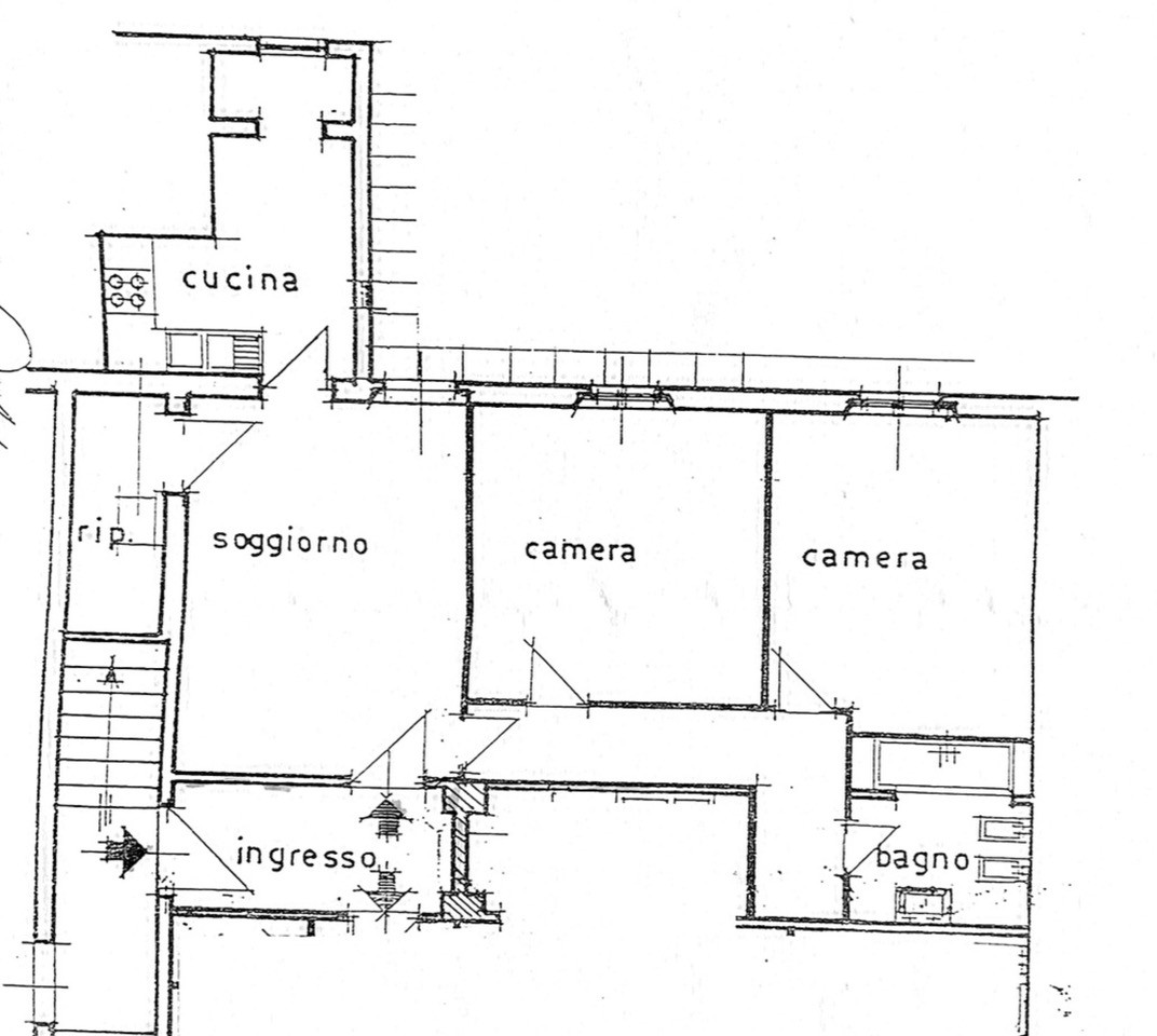
Appartamento in buone condizioni complessive e molto luminoso situato al piano primo di piccola palazzina. Di circa 80 mq. e’ composto da ingresso, soggiorno con cucinotto separato e dispensa, due camere matrimoniali, bagno e ripostiglio – lavanderia. In attesa di certificazione energetica.
Scheda tecnica
- Codice ANX807
- Tipo di Annuncio Vendita
- Tipologia Appartamenti
- Provincia SIENA
- Comune Siena
- Località viale Cavour
- Numero Locali 4
- Classe Energetica G IPE/EPI: kWh/mqanno
- Piano 1 di
- Stato conservazione interni abitabile
- Stato conservazione esterni buone
- Riscaldamento autonomo SI















