Cod. AN810 - AcquaCalda
Siena
€290.000
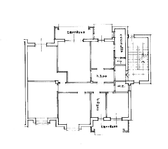
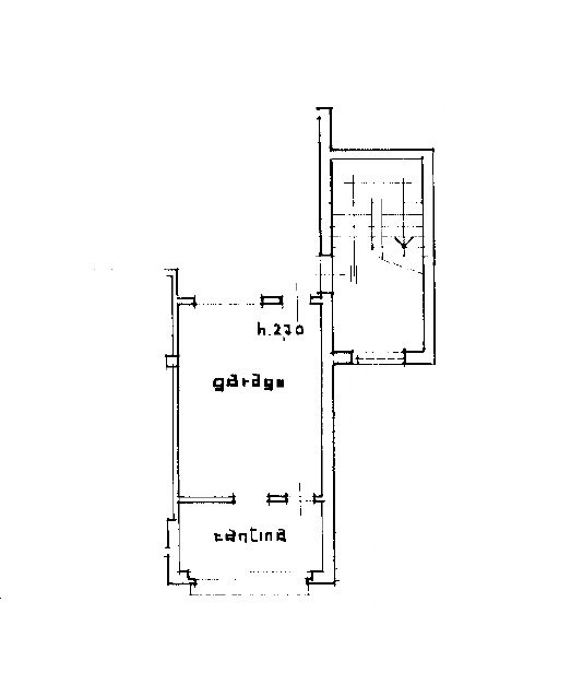
Nel quartiere Acqua Calda proponiamo in vendita ampio e luminoso appartamento posto al primo piano di palazzina con mattoni faccia vista di circa 130 mq così composto: ingresso, sala da pranzo con cucinotto, salone e terrazza. Nel reparto notte troviamo 4 camere da letto e due bagni entrambi finestrati. L’appartamento necessità di ristrutturazione, gli impianti sono autonomi. Completa la proprietà garage di 30 mq e cantina.
- Codice AN810
- Tipo di Annuncio Vendita
- Tipologia Appartamenti
- Provincia SIENA
- Comune Siena
- Località AcquaCalda
- Numero Locali 8
- Classe Energetica G IPE/EPI: kWh/mqanno
- Piano t di 3
- Spese condominiali 80 €/mese
- Anno costruzione 1970
- Stato conservazione interni da ristrutturare
- Stato conservazione esterni buone
- Posto auto condominiale SI
- Balcone SI
- Riscaldamento autonomo SI























