Cod. FV72 - Monteroni d'arbia
Monteroni d'Arbia
€120.000
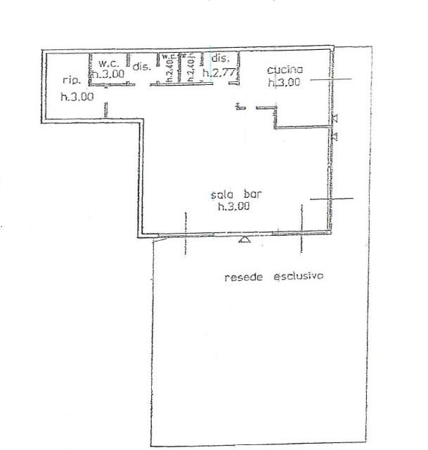
Monteroni d’Arbia in strada di grande passaggio si vende fondo accatastato in c1 (negozi e botteghe) ad oggi adibito a bar con un contratto di affitto di circa 130 mq e con un grande resede esclusivo.
Scheda tecnica
- Codice FV72
- Tipo di Annuncio Vendita
- Tipologia Attivita commerciale
- Provincia SIENA
- Comune Monteroni d'Arbia
- Località Monteroni d'arbia
- Numero Locali 1
- Classe Energetica G IPE/EPI: kWh/mqanno
- Piano t di
- Stato conservazione interni ottime
- Stato conservazione esterni ottime
- Posto auto condominiale SI
- Riscaldamento autonomo SI
- Climatizzatore SI








