Cod. ANX814 - Via Toscana
Siena
€400.000
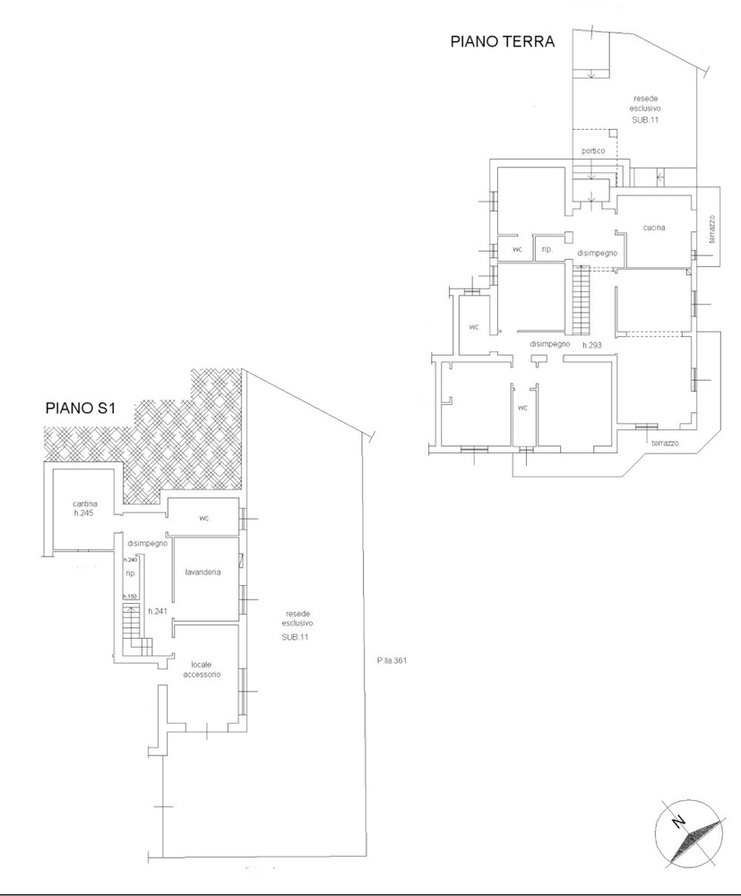
Ubicato nel quartiere residenziale di Vico Alto, Via Toscana, vendesi appartamento da ammodernare inserito in piccoal palazzina, molto luminoso e con ingresso indipendente da giardino privato. L’immobile, di dimensioni importanti, sviluppa su due livelli per complessivi 275 mq ed e’ cosi’ suddiviso: al piano terra rialzato ingresso con portico, cucina con terrazzo, soggiorno doppio con caminetto e grande terrazzo, quattro camere grandi, tre bagni ed un ripostiglio; tramite scala interna si scende al piano seminterrato ove trovano posto un grande locale accessorio, una cantina, la lavanderia, un bagno e il ripostiglio oltre ad un grande garage di 42 mq.La proprieta’ e’ circondata da un bel giardino di circa 300 mq.
Utenze autonome, interni da ristrutturare.
- Codice ANX814
- Tipo di Annuncio Vendita
- Tipologia Appartamenti
- Provincia SIENA
- Comune Siena
- Località Via Toscana
- Numero Locali 11
- Classe Energetica G IPE/EPI: kWh/mqanno
- Piano t di
- Anno costruzione 1980
- Stato conservazione interni da ristrutturare
- Stato conservazione esterni buone
- Posto auto privato SI
- Terrazza SI
- Balcone SI
- Riscaldamento autonomo SI
- Camino/Termo camino SI























